Vedi più foto
Cod. 33894
€ 299.000
Classe energetica: A4 EP glnr: 58.00 kwh/㎡

Villino a schiera / bifamiliare in Vendita a Tortoreto

Collinare - Via Vascello
135 mq
3
3
Descrizione

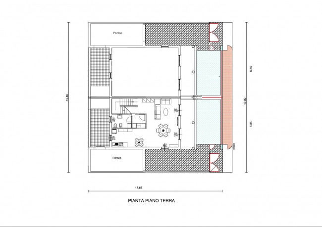
Villino bifamiliare di nuova costruzione, dallo stile contemporaneo e pulito, sviluppato su due livelli per una superficie coperta complessiva di circa 135 m². Una soluzione moderna, pensata per chi cerca comfort, efficienza e spazi ben distribuiti, senza rinunciare alla vista mare.
Al piano terra, di circa 66 m², l'ingresso conduce ad un ampio soggiorno luminoso con affaccio diretto sul giardino e una splendida vista aperta verso il mare, cucina abitabile separata, bagno e comodo antibagno ad uso lavanderia. Gli spazi sono razionali, vivibili e pensati per la quotidianità di una famiglia.
Il piano primo, di circa 70 mq., collegato da una elegante scala interna in travertino, ospita tre camere da letto, di cui una matrimoniale con bagno en suite, due camere singole, un bagno principale e una terrazza panoramica con vista mare, oltre a balconi per una superficie complessiva di circa 55 m², veri e propri spazi da vivere all'aperto.

La proprietà è completata da una corte–giardino frontale di circa 20 m², da una corte posteriore di 18 m² e da un ampio garage fuori terra di circa 23 m², elemento sempre più raro e prezioso.
Le finiture sono di livello, curate nei dettagli: pavimentazioni in gres porcellanato effetto parquet, riscaldamento a pavimento, predisposizione per aria condizionata con split, impianto domotico per la gestione da remoto, predisposizione per impianto di allarme e impianto fotovoltaico da 4 kW, a garanzia di comfort ed efficienza energetica.
Inserito in un mini complesso residenziale immerso nel verde, in posizione riservata ma comoda ai servizi, questo villino rappresenta una proposta moderna e concreta, ideale per chi vuole abitare oggi guardando già al domani, con una vista mare e colline che fa davvero la differenza.

  • Nessuna commissione a carico dell'acquirente.

mostra di piùmostra di meno
Caratteristiche
Scopri le caratteristiche di questo immobile
Totale mq: 135 mq
Camere: 3
Bagni: 3
Locali: 5
Stato conservazione: Ottimo
Piano: Edificio
Piani totali: 2
Riscaldamento: Autonomo
Assenza barriere architettoniche: Si
Anno di costruzione: 2025
Stato attuale: In costruzione
Balconi: Presente
Terrazzo: Presente
Giardino: Privato
Distanza mare/lago: 1.500 mt.
Cucina: Abitabile
Box: Singolo, 23 mq
Posizione: Zona residenziale
Impianto Elettrico: A norma
Conformazione: In aderenza su 1 lato
Qualità e pregio dell'immobile: ★★★★
Finiture interne: ★★★★
Qualità contesto e luogo: ★★★★★
Bagno principale con: Doccia
Bagno secondario con: Doccia
Pavim. Reparto Giorno: Monocottura / gres porcellanato
Pavim. Reparto Notte: Monocottura / gres porcellanato
Tipo serranda garage: Basculante manuale
Balcone abitabile
Camino o canna fumaria
Ingresso autonomo
Portone Blindato
Allestimento del giardino o del terreno: Verde allestito
Vista mare
Vista panoramica
Impianto di pannelli fotovoltaici: < 4 kw circa
Immobile idoneo per più nuclei familiari: per 1 famiglia
Impianto di riscaldamento a norma
Tipologia di proprietà: normale proprietà
Aria condizionata: Solo predisposta
Pannelli solari termici: Presenti
Cappotto termico esterno
Domotica in casa
Nelle vicinanze
Servizi e infrastrutture della zona
Complessi Sportivi
Ubicazione immobile
Contattaci


Alcuni immobili che potrebbero interessarti

  • Villino a  schiera / bifamiliare in vendita a Tortoreto
    Tortoreto
    Collinare
    € 299.000
    Villino a schiera / bifamiliare in vendita
    Cod. 33911
    Villino bifamiliare in corso di costruzione, dallo stile contemporaneo e pulito, sviluppato su due livelli per una superficie coperta...
    Dettagli
  • Villino a  schiera / bifamiliare in vendita a Tortoreto
    Tortoreto
    Collinare
    € 299.000
    Villino a schiera / bifamiliare in vendita
    Cod. 33909
    Villino bifamiliare in corso di costruzione, dallo stile contemporaneo e pulito, sviluppato su due livelli per una superficie coperta...
    Dettagli
Ultimo aggiornamento 19/01/2026
Villino a schiera / bifamiliare in Vendita
Tortoreto - Via Vascello
Collinare
€ 299.000
135 mq
3
3
Menu
Ricerca
Chiamaci
Scrivici
Whatsapp