Vedi più foto
Cod. 33909
€ 299.000
Classe energetica: A4 EP glnr: 58.00 kwh/㎡

Villino a schiera / bifamiliare in Vendita a Tortoreto

Collinare - via vascello
135 mq
3
3
Descrizione

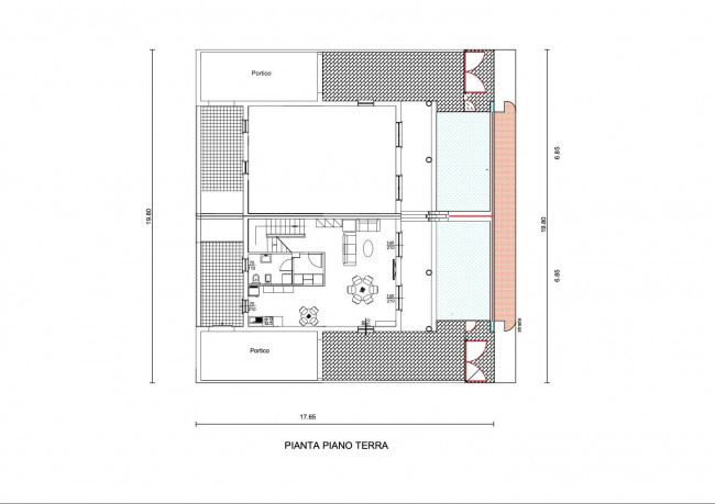
Villino bifamiliare in corso di costruzione, dallo stile contemporaneo e pulito, sviluppato su due livelli per una superficie coperta complessiva di circa 135 m². Una soluzione moderna, pensata per chi cerca comfort, efficienza e spazi ben distribuiti, senza rinunciare alla vista mare.
Al piano terra, di circa 66 m², l'ingresso conduce ad un ampio soggiorno luminoso con affaccio diretto sul giardino e una splendida vista aperta verso il mare, cucina abitabile separata, bagno e comodo antibagno ad uso lavanderia. Gli spazi sono razionali, vivibili e pensati per la quotidianità di una famiglia.
Il piano primo, di circa 70 m², collegato da una elegante scala interna in travertino, ospita tre camere da letto, di cui una matrimoniale con bagno en suite, due camere singole, un bagno principale e una terrazza panoramica con vista mare, oltre a balconi per una superficie complessiva di circa 55 m², veri e propri spazi da vivere all'aperto.

La proprietà è completata da una corte–giardino frontale di circa 20 m², da una corte posteriore di 18 m² e da un ampio garage fuori terra di circa 23 m², elemento sempre più raro e prezioso.
Le finiture sono di livello, curate nei dettagli: pavimentazioni in gres porcellanato effetto parquet, riscaldamento a pavimento, predisposizione per aria condizionata con split, impianto domotico per la gestione da remoto, predisposizione per impianto di allarme e impianto fotovoltaico da 3 kW, a garanzia di comfort ed efficienza energetica.
Inserito in un mini complesso residenziale immerso nel verde, in posizione riservata ma comoda ai servizi, questo villino rappresenta una proposta moderna e concreta, ideale per chi vuole abitare oggi guardando già al domani, con una vista mare e colline che fa davvero la differenza.

  • Nessuna commissione a carico dell'acquirente.

mostra di piùmostra di meno
Caratteristiche
Scopri le caratteristiche di questo immobile
Totale mq: 135 mq
Camere: 3
Bagni: 3
Locali: 5
Stato conservazione: Ottimo
Piano: Edificio
Piani totali: 2
Riscaldamento: Autonomo
Assenza barriere architettoniche: Si
Anno di costruzione: 2025
Stato attuale: In costruzione
Balconi: Presente
Terrazzo: Presente
Giardino: Privato
Distanza mare/lago: 1.500 mt.
Cucina: Abitabile
Box: Singolo, 23 mq
Posizione: Zona residenziale
Impianto Elettrico: A norma
Conformazione: In aderenza su 1 lato
Qualità e pregio dell'immobile: ★★★★
Finiture interne: ★★★★
Qualità contesto e luogo: ★★★★★
Bagno principale con: Doccia
Bagno secondario con: Doccia
Pavim. Reparto Giorno: Monocottura / gres porcellanato
Pavim. Reparto Notte: Monocottura / gres porcellanato
Tipo serranda garage: Basculante manuale
Balcone abitabile
Camino o canna fumaria
Ingresso autonomo
Portone Blindato
Allestimento del giardino o del terreno: Verde allestito
Vista mare
Vista panoramica
Impianto di pannelli fotovoltaici: < 4 kw circa
Immobile idoneo per più nuclei familiari: per 1 famiglia
Impianto di riscaldamento a norma
Tipologia di proprietà: normale proprietà
Aria condizionata: Solo predisposta
Pannelli solari termici: Presenti
Cappotto termico esterno
Domotica in casa
Nelle vicinanze
Servizi e infrastrutture della zona
Complessi Sportivi
Ubicazione immobile
Contattaci


Alcuni immobili che potrebbero interessarti

  • Villino a  schiera / bifamiliare in vendita a Tortoreto
    Tortoreto
    Collinare
    € 299.000
    Villino a schiera / bifamiliare in vendita
    Cod. 33894
    Villino bifamiliare di nuova costruzione, dallo stile contemporaneo e pulito, sviluppato su due livelli per una superficie coperta...
    Dettagli
  • Villino a  schiera / bifamiliare in vendita a Tortoreto
    Tortoreto
    Collinare
    € 299.000
    Villino a schiera / bifamiliare in vendita
    Cod. 33911
    Villino bifamiliare in corso di costruzione, dallo stile contemporaneo e pulito, sviluppato su due livelli per una superficie coperta...
    Dettagli
Ultimo aggiornamento 26/12/2025
Villino a schiera / bifamiliare in Vendita
Tortoreto - via vascello
Collinare
€ 299.000
135 mq
3
3
Menu
Ricerca
Chiamaci
Scrivici
Whatsapp