Vedi più foto
Cod. 30942
€ 150.000 trattabili
Classe energetica: F EP glnr: 158.00 kwh/㎡

Casa cielo - terra in Vendita a Roccafluvione

Centrale / Centro Storico - Via della Repubblica, 20
200 mq
2
3
Descrizione

Interessante proprietà autonoma, con corte e possibilità di garage, a meno di 10 Km da Ascoli Piceno. OTTIMO AFFARE!!!

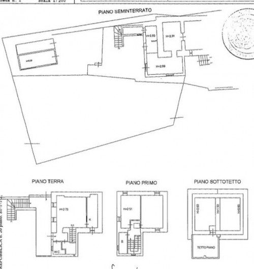
Casa indipendente posta su quattro livelli, piano terra e primo, di complessivi 130 mq circa, sono a destinazione abitativa, composta da soggiorno con camino, cucina, bagno e ripostiglio al piano inferiore mentre al piano superiore troviamo due camere da letto (una matrimoniale e una singola) e bagno; il piano sottostrada è composto da cucina, bagno, locale rustico e cantina ed un terrazzo di circa 50.
Completano la proprietà una soffitta di circa 50 mq con balcone di 16 mq, ampio terrazzo all'ingresso del piano terra di circa 20 mq, giardino/orto e, con prezzo da computare a parte, è possibile acquistare un garage di 37 mq.

L'immobile, ristrutturato completamente nel 2007, è in condizioni perfettamente abitabili, si presenta con materiali e finiture di ottima qualità ed impianti completamente a norma.

Posizionata a ridosso del centro cittadino di Roccafluvione, localizzazione molto comoda, e a soli 10 Km da Ascoli Piceno, facilmente raggiungibile e grazie alla sua posizione rappresenta l'ideale per chi cerca spazio e riservatezza.
A poca distanza dalle principali vie di comunicazione, questa abitazione è perfetta per ospitare una famiglia e viverci stabilmente.

mostra di piùmostra di meno
Caratteristiche
Scopri le caratteristiche di questo immobile
Totale mq: 200 mq
Camere: 2
Bagni: 3
Locali: 8
Stato conservazione: Ottimo
Piani totali: 3
Riscaldamento: Autonomo
Anno di costruzione: 2007
Stato attuale: Libero al rogito
Balconi: Presente, 16 mq
Terrazzo: Presente, 70 mq
Giardino: Privato
Cucina: Cucinotto
Box: Doppio
Impianto Elettrico: A norma
Nelle vicinanze
Servizi e infrastrutture della zona
Parco giochi
Asilo
Scuole Elementari
Scuole Medie
Ufficio Postale
Uffici comunali
Fermata autobus di linea
Ubicazione immobile
Contattaci


Alcuni immobili che potrebbero interessarti

  • Casa cielo - terra in vendita a Roccafluvione
    Roccafluvione
    Collinare
    € 25.000
    Casa cielo - terra in vendita
    Cod. 24531
    Deliziosa casa indipendente su tre livelli per complessivi 150 mq circa e composta da piano seminterrato con locali ripostiglio e fondaci,...
    Dettagli
  • Casa cielo - terra in vendita a Ripatransone
    Ripatransone
    Trivio
    € 164.000
    Casa cielo - terra in vendita
    Cod. 29701
    Casale colonico disposto su due livelli della superficie complessiva di 280 mq circa ed è composto da:- piano terra di 140 mq circa,...
    Dettagli
Ultimo aggiornamento 05/04/2024
Casa cielo - terra in Vendita
Roccafluvione - Via della Repubblica, 20
Centrale / Centro Storico
€ 150.000
200 mq
2
3
Menu
Ricerca
Chiamaci
Scrivici
Whatsapp