78 mq
2
1
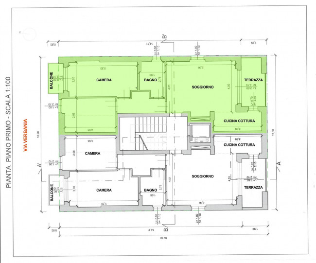
Appartamento per civile abitazione sito al piano primo con ascensore, delle dimensioni di 78 m² circa, composto da ingresso su ampio soggiorno, cucina solo cottura (volendo isolabile dal soggiorno), due camere da letto (una ampia matrimoniale ed una doppia), bagno con doccia e finestra, corridoio nel reparto notte. L'Appartamento è inoltre fornito di una ampia balconata abitabile e coperta in prossimità del soggiorno, delle dimensioni di 9 m² circa, oltre ad un balcone di 2 m² circa sulla facciata opposta.
L'Appartamento, di nuova costruzione, è ben rifinito con pavimentazione in gress porcellanato, infissi di qualità Shuco, riscaldamento a pavimento, numerose controsoffittature con luce riflessa, tapparelle elettriche, impianto di allarme predisposto, controllo domotico del riscaldamento/clima a distanza, predisposizione completa per aria condizionata in tutte le stanze (mancante solo dello split nella stanza, ma già fornito di inverter esterno), impianto fotovoltaico privato di 3,5 Kw per ogni singolo Appartamento, con accumulo privato di 7 Kw per ogni Appartamento.
Inserito all'interno di una moderna e nuova palazzina in stile moderno e contemporaneo, localizzata in una posizione riservata ma comunque non lontana da tutti i principali servizi, ove il mare e anche raggiungibile attraverso un passaggio ciclabile non distante (mare a circa 1 m). Soluzione ideale come abitazione stabile.

78 mq
2
1