120 mq
3
2
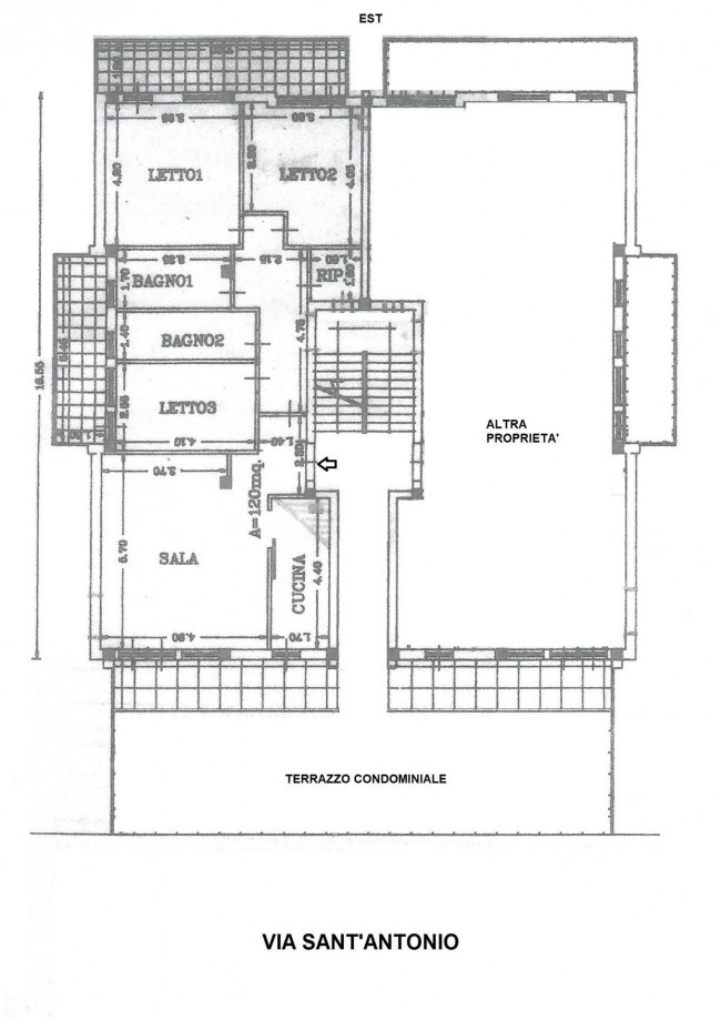
Appartamento allo stato grezzo di mq 120 circa oltre a balconi di complessivi mq 30 circa. L'immobile attualmente si presenta solo con le mura perimetrali e le persiane di alluminio, il resto è tutto da fare, pavimentazione, muri divisori, impianti, finestre. La distribuzione degli interni può essere sviluppata a piacimento secondo necessità tenendo comunque presente che grazie all'abbondante superficie è possibile realizzare un abitazione con 3 camere da letto, 2 bagni, soggiorno e cucina. Insieme all'Appartamento viene venduto al piano primo sotto strada uno spazio coperto di mq 70 circa dove è possibile parcheggiare più di un auto ed un locale uso deposito/magazzino (tamponato su 3 lati) di mq 85 posto al piano secondo sotto strada. L'immobile è porzione di un fabbricato di sole 4 abitazioni posto non lontano dal centro, dai servizi principali e dal mare.

120 mq
3
2