230 mq
4
1
Abitazione comodissima, fruibile da subito! Zona panoramica!
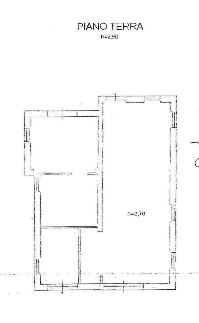
Casa indipendente di complessivi 230 mq su due livelli. Appartamento con ingresso indipendente di 115 mq circa posto al piano primo e rimessa/magazzino al piano terra di pari dimensioni.
Balconi molto panoramici per complessivi 25 mq circa.
L'appartamento è composto da soggiorno con termocamino e retro cucina, sala da pranzo, quattro camere da letto (tre matrimoniali, una singola) ed un bagno con vasca. Il piano inferiore è composto da rimesse e magazzini, una parte attualmente è adibita ad ampio soggiorno con angolo cottura.
Corte di pertinenza da frazionare e possibilità di acquistare, con prezzo a parte, un terreno agricolo da adibire ad orto.
L'immobile si presenta in buone condizioni generali, con pavimentazione in marmo e monocottura sull'intera superficie, infissi in legno con doppio vetro, tapparelle, impiantistica completamente funzionante eventualmente da aggiornare alle recenti normative.
Abitabile da subito ed in perfetto stato di manutenzione.
Localizzata in una zona particolarmente panoramica, immersa nel verde e nella quiete, a soli 4 Km dal centro abitato di Force, quindi da negozi e servizi.
Questa abitazione è la soluzione ideale per chi cerca tranquillità, splendidi scorci ed un ottimo rapporto qualità/prezzo.

230 mq
4
1