62 mq
2
1
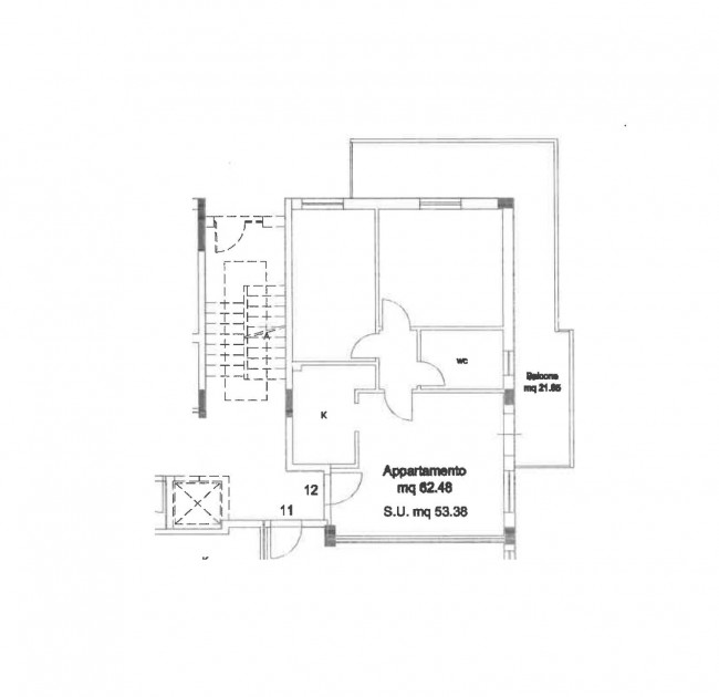
Appartamento delle dimensioni di circa 62 m², situato al piano secondo con ascensore di una piccola e curata palazzina composta da soli tre piani, a soli 40 metri dal lungomare e dalla rinomata zona di Villa Fiore.
L'immobile è composto da ingresso su soggiorno, cucina con angolo cottura separato, due camere da letto (una matrimoniale e una doppia), un bagno finestrato con box doccia e un disimpegno nella zona notte. Completano la proprietà uno splendido balcone abitabile di circa 22 m², ideale per pranzi e cene all'aperto durante la bella stagione.
L'Appartamento si presenta in buone condizioni generali, immediatamente abitabile, ed è dotato di impianto elettrico a norma, riscaldamento autonomo a metano con caldaia a condensazione, pavimenti in parquet nella zona notte, infissi in legno di douglas con vetro singolo e finiture in stile classico, tipiche dell'epoca di costruzione.
Soluzione ideale sia come residenza principale che come casa vacanze, grazie alla posizione invidiabile a pochi passi dal lungomare e dalla pineta nella tranquilla zona di Villa Fiore, con servizi raggiungibili comodamente a piedi.
Possibilità di acquisto, con prezzo da computare a parte, di:

62 mq
2
1