85 mq
2
2
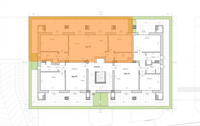
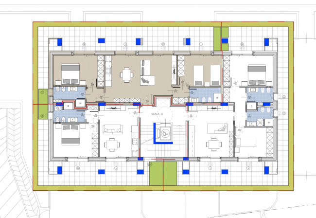
Proponiamo in Vendita un elegante Appartamento di 85 m², situato al terzo piano del prestigioso complesso residenziale Caroselli Garden House. L'immobile è composto da un ampio soggiorno con angolo cottura, due camere da letto (una matrimoniale e una doppia), due bagni di cui uno finestrato, entrambi con doccia, e due pratici disimpegni nel reparto notte. L'Appartamento è arricchito da una terrazza loggiata esterna abitabile coperta, di 58 m², ideale per godersi la bella stagione.
L'unità, pronta per la consegna, è rifinita con pavimentazione in parquet di rovere su tutta la superficie, infissi Shuko certificati e un impianto di riscaldamento e raffrescamento canalizzato, con controllo tramite app per regolare la temperatura in ogni stanza. La soluzione è situata in un edificio di cinque piani, accessibile esclusivamente ai residenti tramite tastierino numerico, garantendo la massima privacy e sicurezza.
Il complesso residenziale è circondato da un incantevole giardino interno, con piante su tutte le balconate e logge esterne, con irrigazione gestita da un sistema centrale a accumulo di acqua. Realizzato in classe energetica NZEB (Near Zero Energy Building), l'edificio è progettato per consumi energetici prossimi allo zero, grazie all'impianto fotovoltaico da 44 kW e soluzioni innovative come il cappotto esterno e l'ottimizzazione dell'irraggiamento naturale.
Posizione: L'immobile si trova in una posizione centrale, a pochi passi dai principali servizi come scuole, banche, farmacia, supermercati e a soli 650 metri dal mare, risultando la soluzione ideale per chi cerca un Appartamento esclusivo con un impatto estetico unico e suggestiva illuminazione notturna.
Note:

85 mq
2
2