230 mq
4
4
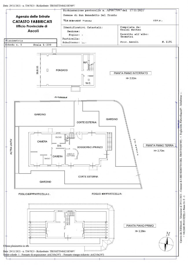
Esclusiva villa singola situata a pochi passi dal lungomare Rinascimento una vera e propria oasi di tranquillità a pochi passi dal mare. La sua posizione privilegiata, unita alla sua architettura moderna e raffinata, la rende una soluzione ideale per chi desidera vivere in un ambiente elegante e confortevole, inoltre dotata di pannelli solari e di cappotto termoacustico per garantire un elevato risparmio energetico.. La proprietà, per un totale di di 230 mq coperti, e' in perfette condizioni, con rifiniture di pregio ed è suddivisa nel seguente modo: al piano terra di circa 120 mq , troviamo un ampio e luminoso soggiorno, una cucina abitabile completamente arredata, due confortevoli camere da letto e 2 bagni tutti dotati di finiture di alta qualità , con una comoda scala interna si accede al piano superiore di circa 40 mq con 2 vani e bagno oltre a 2 bellissime terrazze coperte di circa 90 mq. Dispone inoltre di ampio locale taverna di 70 mq con camino e bagno ed un comodo garage doppio di 42 mq ideale per 2 auto. L'esterno della villa è altrettanto suggestivo, con una corte di circa 340 mq e un giardino perimetrale curato nei minimi dettagli, perfetto per godersi il clima mite della zona, l'intera proprietà è completamente recintata e dispone di un altro ingresso carrabile con cancello che consente di parcheggiare anche auto ed altri mezzi.

230 mq
4
4