161 mq
5
3
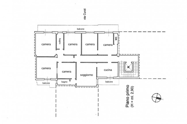
Ampio Appartamento di circa 161 m², situato al primo piano con ascensore. L'ingresso si apre su un corridoio che conduce al luminoso soggiorno e alla spaziosa cucina abitabile. La residenza dispone di cinque camere da letto, tutte di generose dimensioni e adatte sia a letti matrimoniali che singoli. I tre bagni, tutti dotati di finestra, offrono comfort e praticità.
L'Appartamento vanta anche tre balconi, con una superficie totale di circa 34,5 m², ideali per godersi momenti all'aria aperta. Le condizioni della proprietà sono discrete, con rifiniture e materiali che richiamano lo stile dell'epoca di costruzione nel 1972, come la pavimentazione in marmittoni e gli infissi in legno con vetro singolo. L'impiantistica di riscaldamento è autonoma, mentre l'impianto elettrico è a norma, sebbene datato.
La proprietà include una comoda soffitta al piano superiore, offrendo spazio aggiuntivo e versatilità. Inoltre, è garantito il diritto di parcheggio per un'auto in uno spazioso e sicuro ambiente condominiale all'aperto, controllato da una sbarra di accesso.
La posizione centrale in un tranquillo e raffinato condominio aggiunge valore al vivere quotidiano, essendo a breve distanza da tutti i servizi e, non da ultimo, dal mare. L'ampia metratura dell'Appartamento consente anche la possibilità di suddividerlo in due unità abitative separate, offrendo flessibilità e opportunità di personalizzazione. Un'occasione unica per chi cerca uno spazio abitativo generoso e versatile in un contesto comodo e prestigioso.

161 mq
5
3