840 mq
6
2
Incorniciata dal verde ed in bellissima posizione panoramica, a soli 12 Km dal mare, immersa nelle rigogliose e ospitali campagne della zona collinare, questa proprietà è composta da una casa abitabile di 540 mq circa, casale colonico di circa 300 mq da ristrutturare, vari annessi agricoli ed un terreno di circa 12 ettari.
Davvero una proprietà importante con moltissime potenzialità, sia turistiche che agricole.
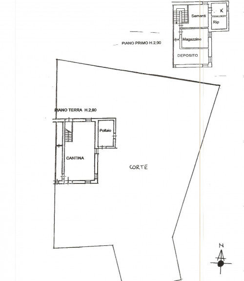
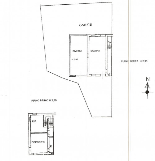
Il fabbricato principale, su quattro livelli di circa 135 mq ciascuno, è composto al piano terra da cantine e fondaci; i due livelli superiori ospitano un appartamento ciascuno di pari dimensioni e composizione (ingresso, cucina e retro, sala da pranzo, tre camere da letto e bagno) oltre a due balconi di circa mq. 17 per piano, con splendida vista sulle colline circostanti; piano terzo (sottotetto) a destinazione soffitta.
L'abitazione, perfetta per ospitare due famiglie, si presenta in buone condizioni generali: solida la struttura, i solai ed il tetto.
Le finiture risalgono all'epoca costruttiva ma in ottimo stato di manutenzione con pavimentazione in monocottura e marmo, porte interne in legno così come gli infissi con vetri singoli e tapparelle; riscaldamento, impianto elettrico e idrico perfettamente funzionanti eventualmente da aggiornare alle normative.
Il casale colonico, invece, necessita di ristrutturazione, posto su due livelli per complessivi 300 mq circa. Presenta mura in pietra e mattoni, come nella tradizione rurale marchigiana, ed è adibito principalmente a servizio dell'attività agricola. Completano la proprietà vari annessi agricoli: un ampio capannone, fienile, stalle e magazzini.
La proprietà comprende anche un terreno agricolo di circa 12 ha con la presenza di due pozzi per l'irrigazione; il terreno è prevalentemente seminativo e ci sono circa 150 piante di ulivo. Risulta avere una conformazione collinare, perfettamente lavorabile per quasi l'intera superficie. Data l'esposizione e la conformazione molto favorevoli, questa proprietà è particolarmente indicata per chi cerca un fondo per realizzare coltivazioni di ogni tipo: vigneto, frutteto, ortaggi ma anche per la coltivazione di frumento, mais e foraggio.
Il compendio immobiliare risulta molto interessante grazie all'abitazione in più che buono stato, alle pertinenze ed agli annessi oltre al terreno circostante ed alla presenza dei pozzi.
Localizzata in bellissima posizione di campagna, da cui si gode di un'ampia vista, questa residenza è l'ideale per una o due famiglie che cercano una soluzione abitativa stabile immersa nella tranquillità e nel verde, ed anche per chi vuole iniziarvi un'attività agrituristica o B&B, capace di dare alloggio e ristoro a svariate persone, considerando le dimensioni della struttura principale ed alla presenza degli annessi che si potrebbero riqualificare e adattare, nonchè della corte circostante e dei terreni su cui creare piccoli spazi arredati con tavolinetti, sedie-sdraio, panche, dove trascorrere momenti di relax, consumare pasti, svolgere attività passatempo; in cui è possibile anche realizzare una piscina.
Adatta anche a chi vuole vivere in campagna, con la possibilità di coltivare ed allevare, nel verde e nella tranquillità, con il vantaggio di essere a pochi Km dalle comodità del paese ed a breve distanza dal ma

840 mq
6
2